東京都内の貸し倉庫・貸し工場の情報満載(トップ) > 東京のエリアで探す > 東京都江東区 > 東雲 > 江東区東雲2-14-40 東雲 貸倉庫
東京都江東区東雲2-14-40 (東雲) 東雲 貸倉庫 詳細データ
この物件の物件番号は6632です。お電話(03-6260-658603-6260-6586)でお問合せの際は物件番号をお知らせ下さい。「東京テナントドットコムを見て」とお伝えいただくと話がスムーズに進みます。
| 物件名 | 東雲 貸倉庫 |
|---|---|
| 沿線/駅 | 東京りんかい線 / 東雲 |
| バス/徒歩 | バス:- / 徒歩:7 分 |
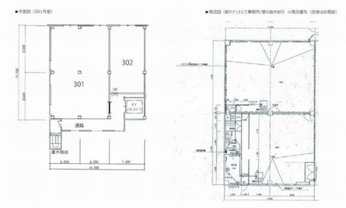
| 所在地 | 江東区東雲2-14-40 |
| 賃料(坪・円) | 坪 14,402 円 (総額 1,008,150 円) |
| 共益費 | 3,300 円 |
| 使用面積 | 70 坪 |
| 敷地面積 | 坪 |
| 礼金 | 2 ヶ月 |
| 敷金 | |
| 保証金 | 8ヶ月分 |
| 構造 | 鉄骨造 |
| 竣工年 | 1991 年 |
| 所在階 | 3/4 階 |
| 接道状況 | |
| 用途地域 | 準工業地域 |
| 駐車場 | 有 |
| 契約期間 | 2 年 |
| 現況 | 現空 |
| 備考 | EV トイレ 駐車場有 |
| 貸し倉庫・貸し工場の事業用ポータルサイトNo.1 |
|---|
|
江東区東雲2-14-40(東京都)の貸し倉庫・貸し工場をはじめ東京全域の貸し倉庫・貸し工場を検索できます。江東区東雲2-14-40(東京都)の事務所付貸倉庫、クレーン付工場、店舗倉庫、工業専用地域等、ニーズに合わせて簡単検索。江東区東雲2-14-40(東京都)の貸し倉庫・貸し工場を貸したい方にはオーナーサポートシステムで無料にて査定・掲載いたします。江東区東雲2-14-40(東京都)で貸し倉庫・貸し工場をご契約のテナント様には貸し倉庫・貸し工場の設計変更、造作のご相談・施工も承ります。貸し倉庫・貸し工場で移転・新規開設をするなら東京地区最大級のテナント.com! |








