東京都内の貸し倉庫・貸し工場の情報満載(トップ) > 東京のエリアで探す > 東京都葛飾区 > 四ツ木 > 葛飾区東四つ木4-30-11 四ツ木 貸工場
東京都葛飾区東四つ木4-30-11 (四ツ木) 四ツ木 貸工場 詳細データ
この物件の物件番号は6628です。お電話(03-6260-658603-6260-6586)でお問合せの際は物件番号をお知らせ下さい。「東京テナントドットコムを見て」とお伝えいただくと話がスムーズに進みます。
| 物件名 | 四ツ木 貸工場 |
|---|---|
| 沿線/駅 | 京成押上線 / 四ツ木 |
| バス/徒歩 | バス:- / 徒歩:9 分 |
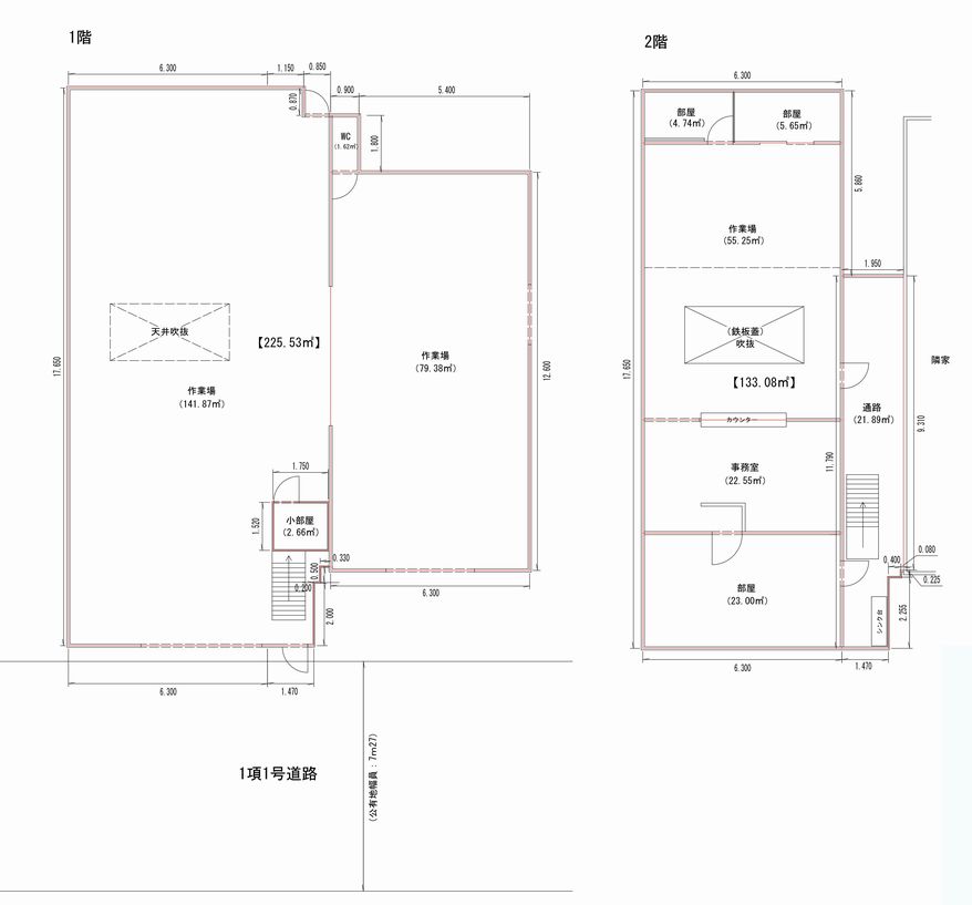
| 所在地 | 葛飾区東四つ木4-30-11 |
| 賃料(坪・円) | 坪 8,333 円 (総額 900,000 円) |
| 共益費 | |
| 使用面積 | 108 坪 |
| 敷地面積 | 坪 |
| 礼金 | 2 ヶ月 |
| 敷金 | 5 ヶ月 |
| 保証金 | |
| 構造 | 軽量鉄骨造 |
| 竣工年 | 1965 年 |
| 所在階 | 1-2/2 階 |
| 接道状況 | 7.2m |
| 用途地域 | 工業地域 |
| 駐車場 | 無 |
| 契約期間 | 3 年 |
| 現況 | 現空 |
| 備考 | トイレ 隣地と一体となる。建物昭和52年11月築、鉄骨造2階建 |
| 貸し倉庫・貸し工場の事業用ポータルサイトNo.1 |
|---|
|
葛飾区東四つ木4-30-11(東京都)の貸し倉庫・貸し工場をはじめ東京全域の貸し倉庫・貸し工場を検索できます。葛飾区東四つ木4-30-11(東京都)の事務所付貸倉庫、クレーン付工場、店舗倉庫、工業専用地域等、ニーズに合わせて簡単検索。葛飾区東四つ木4-30-11(東京都)の貸し倉庫・貸し工場を貸したい方にはオーナーサポートシステムで無料にて査定・掲載いたします。葛飾区東四つ木4-30-11(東京都)で貸し倉庫・貸し工場をご契約のテナント様には貸し倉庫・貸し工場の設計変更、造作のご相談・施工も承ります。貸し倉庫・貸し工場で移転・新規開設をするなら東京地区最大級のテナント.com! |








